Waterwoods | Location | Site Plan |
Showflat | Floor Plan | Price |
Developer | +65 9151 1871 |
Waterwoods EC Floor Plan
2 Bedroom

2 Bedroom, A, AP, 75 sqm 807 sqft
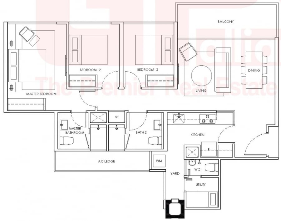
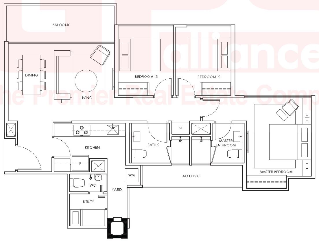
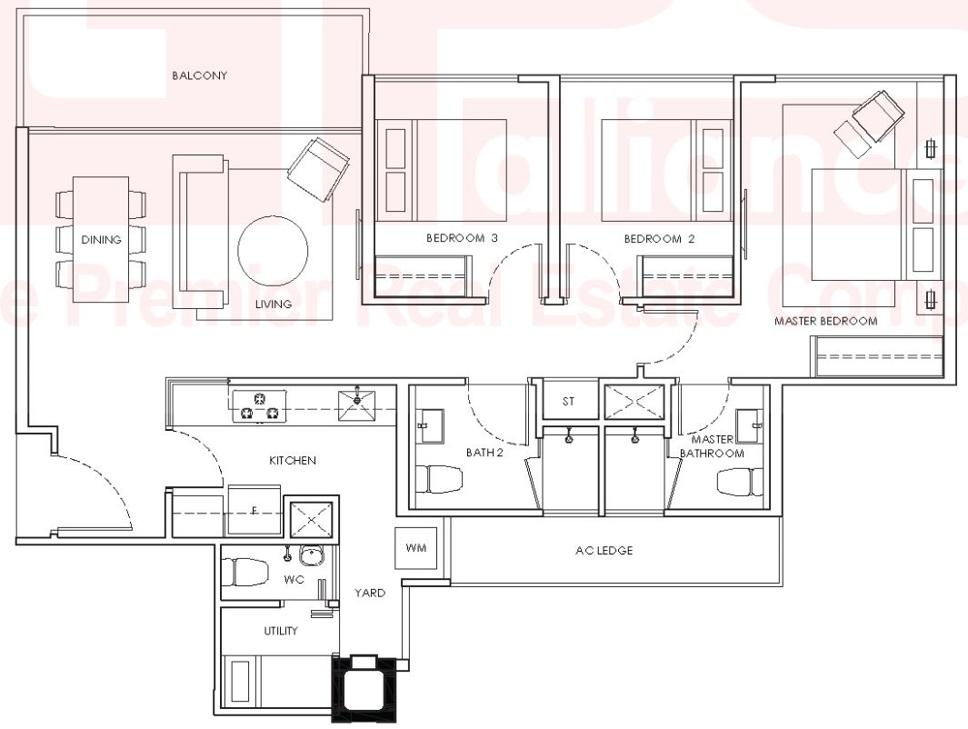
3 Bedroom

3 Bedroom, B1, B1P, 97 sqm 1044 sqft

3 Bedroom, B2, B2P, 96 sqm 1033 sqft

3 Bedroom, B3, B3P, 97 sqm 1044 sqft
4 Bedroom

4 Bedroom, C1, C1P, 119 sqm 1281 sqft

4 Bedroom, C2, C2P, 119 sqm 1281 sqft
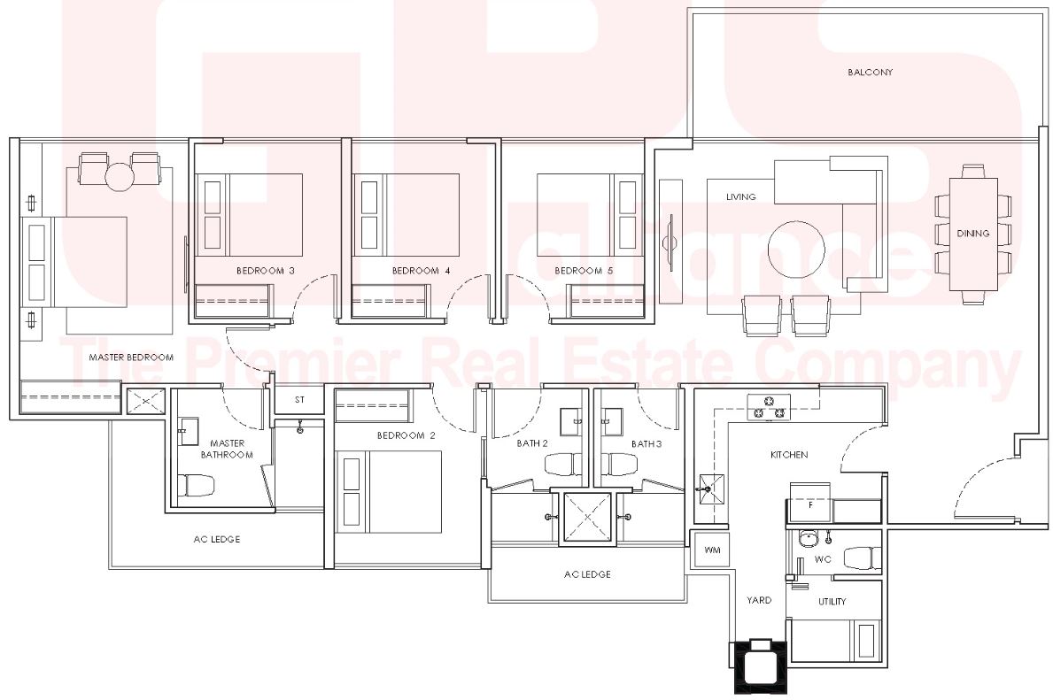
5 Bedroom

5 Bedroom, D1, 155 sqm 1668 sqft

5 Bedroom, D2, D2P, 152 sqm 1636 sqft
5 Bedroom Maisonette

5 Bedroom, D3, 158 sqm 1701 sqft
Call Joanne Ng at
+65 9151 1871
for Showflat Viewing Arrangement Today!
No Matter Of Which Residential Property You Are Interested In …
We will always put your benefits in the top priority.