The Brownstone EC Floor Plan – Efficient And Spacious Paragons Of Modern Contemporary Layout
The Brownstone EC Floor Plan
The Brownstone EC Floor Plan – it consists of 2, 3, 4, 5 bedroom unit types to cater to a variety of family needs. The Brownstone EC comes with jetty balconies to do justice to the views and extend your living space.
You may refer to the The Brownstone EC Site Plan below to see where the particular unit type is located.
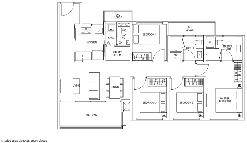
The Brownstone Floor Plan – 2 Bedroom

2 Bedroom A1a 70 sqm 753 sqft A1d 79 sqm 850 sqft

2 Bedroom A1b 68 sqm 732 sqft

2 Bedroom A1p 70 sqm 753 sqft
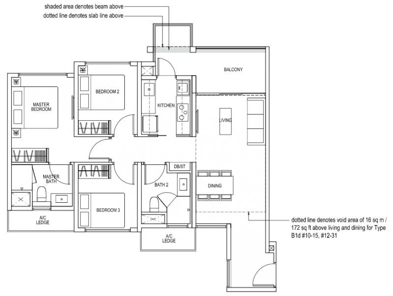
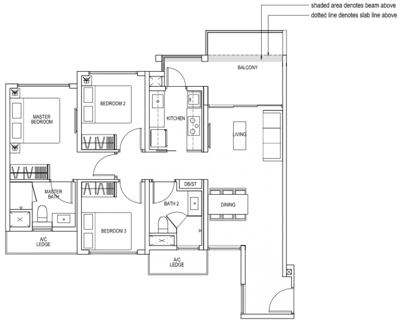
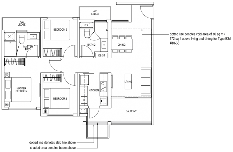
The Brownstone Floor Plan – 3 Bedroom

3 Bedroom B1a 89 sqm 958 sqft B1d 105 sqm 1130 sqft

3 Bedroom B1b 91 sqm 980 sqft

3 Bedroom B1p 92 sqm 990 sqft

3 Bedroom B2a 87 sqm 936 sqft B2d 103 sqm 1109 sqft

3 Bedroom B2b 88 sqm 947 sqft

3 Bedroom B2p 90 sqm 969 sqft

3 Bedroom B2p1 85 sqm 915 sqft

3 Bedroom B3a 86 sqm 926 sqft B3d 102 sqm 1098 sqft

3 Bedroom B3b 88 sqm 947 sqft

3 Bedroom B3p 89 sqm 958 sqft

3 Bedroom B4a 82 sqm 883 sqft B4d 98 sqm 1055 sqft

3 Bedroom B4b 85 sqm 915 sqft

3 Bedroom B4p 85 sqm 915 sqft

3 Bedroom B4p1 82 sqm 883 sqft
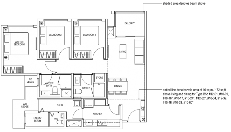
The Brownstone Floor Plan – 3 Bedroom Premium

3 Bedroom Premium B5a 89 sqm 958 sqft B5d 105 sqm 1130 sqft

3 Bedroom Premium B5b 92 sqm 990 sqft

3 Bedroom Premium B5p 92 sqm 990 sqft
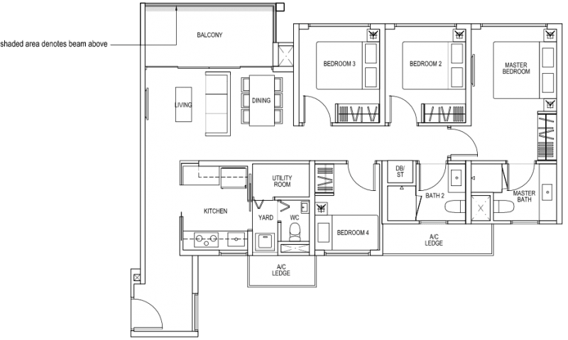
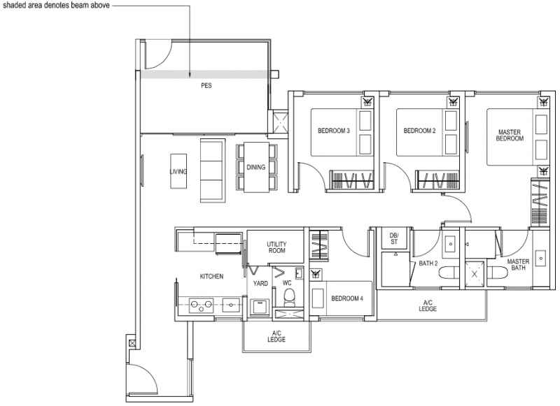
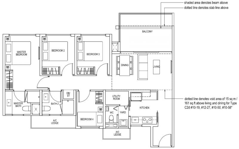
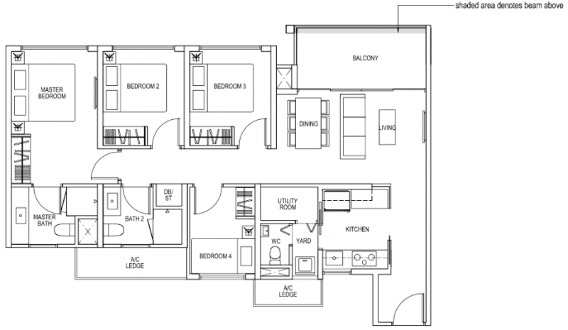
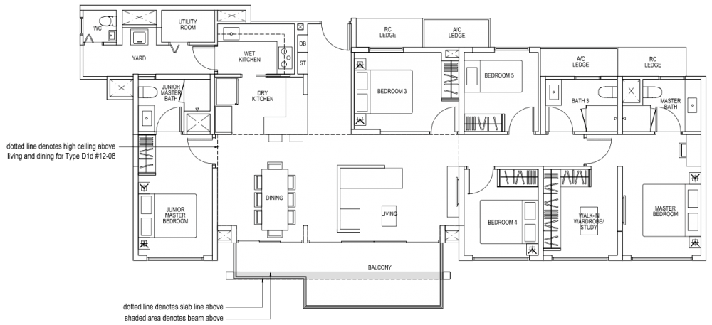
The Brownstone Floor Plan – 4 Bedroom

4 Bedroom C1a 106 sqm 1141 sqft C1d 121 sqm 1302 sqft

4 Bedroom C1b 101 sqm 1087 sqft

4 Bedroom C1p 106 sqm 1141 sqft

4 Bedroom C2a 103 sqm 1109 sqft C2d 118 sqm 1270 sqft

4 Bedroom C2b 98 sqm 1055 sqft

4 Bedroom C2p 103 sqm 1109 sqft

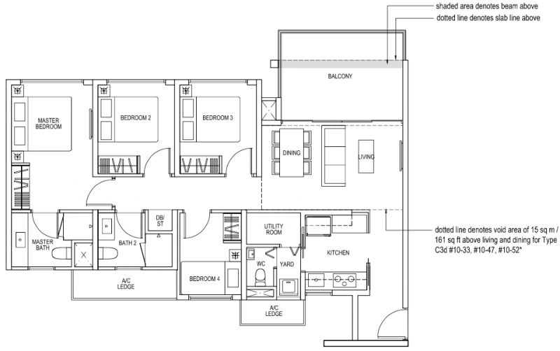
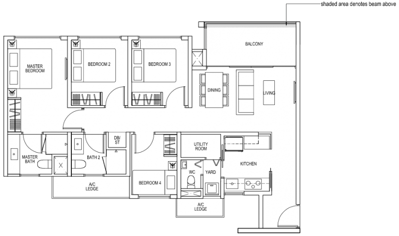
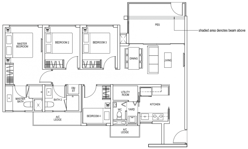
4 Bedroom C3a 103 sqm 1109 sqft C3d 118 sqm 1270 sqft

4 Bedroom C3b 99 sqm 1066 sqft

4 Bedroom C3p 103 sqm 1109 sqft

4 Bedroom C4a 110 sqm 1184 sqft C4d 126 sqm 1356 sqft

4 Bedroom C4b 105 sqm 1130 sqft

4 Bedroom C4p 110 sqm 1184 sqft

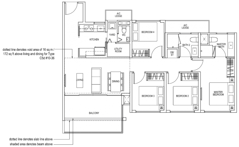
4 Bedroom C5a 107 sqm 1152 sqft C5d 123 sqm 1324 sqft

4 Bedroom C5b 102 sqm 1098 sqft

4 Bedroom C5p 107 sqm 1152 sqft
A floor plan is a drawing to scale, showing a view from above, of the relationships between rooms, spaces and other physical features at one level of a structure. Nothing beats a floor plan in giving you a clear view on a property you are going to own it.
Call Joanne Ng at
+65 9151 1871
for Showflat Viewing Arrangement Today!
No Matter Of Which Residential Property You Are Interested In …
We will always put your benefits in the top priority.


