The Panorama
Open Your Window To Breath-Taking Panoramas And Air Filled With Crisp Morning Freshness
The Panorama is a 99-years leasehold Condo, located at Ang Mo Kio Avenue 2, District 20.
It is developed by renowned developer Pinehill Investments Pte Ltd (Subsidiary company of Wheelock Properties Singapore Limited).
The land size is around 198,942 sqft. With expected date of TOP on 31 December 2019, it comprises of 6 blocks with 698 residential units (1 Bedroom, 2 Bedroom, 2 Bedroom + Study, 3 Bedroom, 3 Bedroom + Study, 4 Bedroom, 5 Bedroom and Penthouse), and stands 17th/20th storeys tall.
At The Panorama, step away from the bustling city and return home, to where lush greens and sparkling waters greet you at every turn.
99.14% SOLD
3 Bedroom from $1.234m
5 Bedroom from $2.426m
Developer | Pinehill Investments Pte Ltd (Subsidiary company of Wheelock Properties Singapore Limited) |
Project Name | The Panorama |
Tenure | 99 years commencing from 8 Apr 2013 |
Location | 8 – 20 Ang Mo Kio Avenue 2 |
District | 20 |
Site Area | Approx. 18,482 sqm/ 198,942 sqft |
# of Blocks | 6 |
# of Floors | 6 Blocks of 17th/20th storeys |
# of Units | 698 |
# of Car Park Lots | 698 + 6 Handicap lots (2 levels of basement carpark) |
Expected TOP | 31 December 2019 |
Architect | MKPL Architects Pte Ltd |
Unit Types | SQFT | No. of Units |
---|---|---|
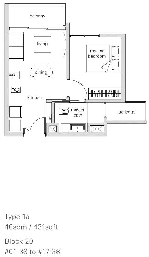
1 Bedroom (1a, 1b, 1c, 1d, 1e) | 431 – 474 | 95 |
2 Bedroom (2a, 2b, 2c) | 678 – 700 | 82 |
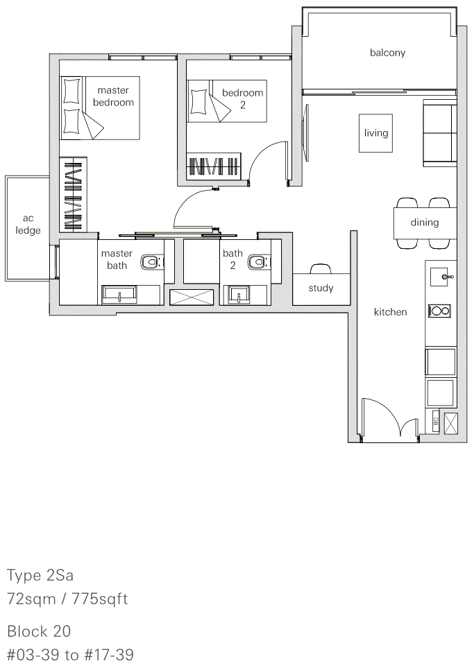
2 Bedroom + Study (2Sa, 2Sb, 2Sc, 2Sd, 2Se) | 775 – 797 | 114 |
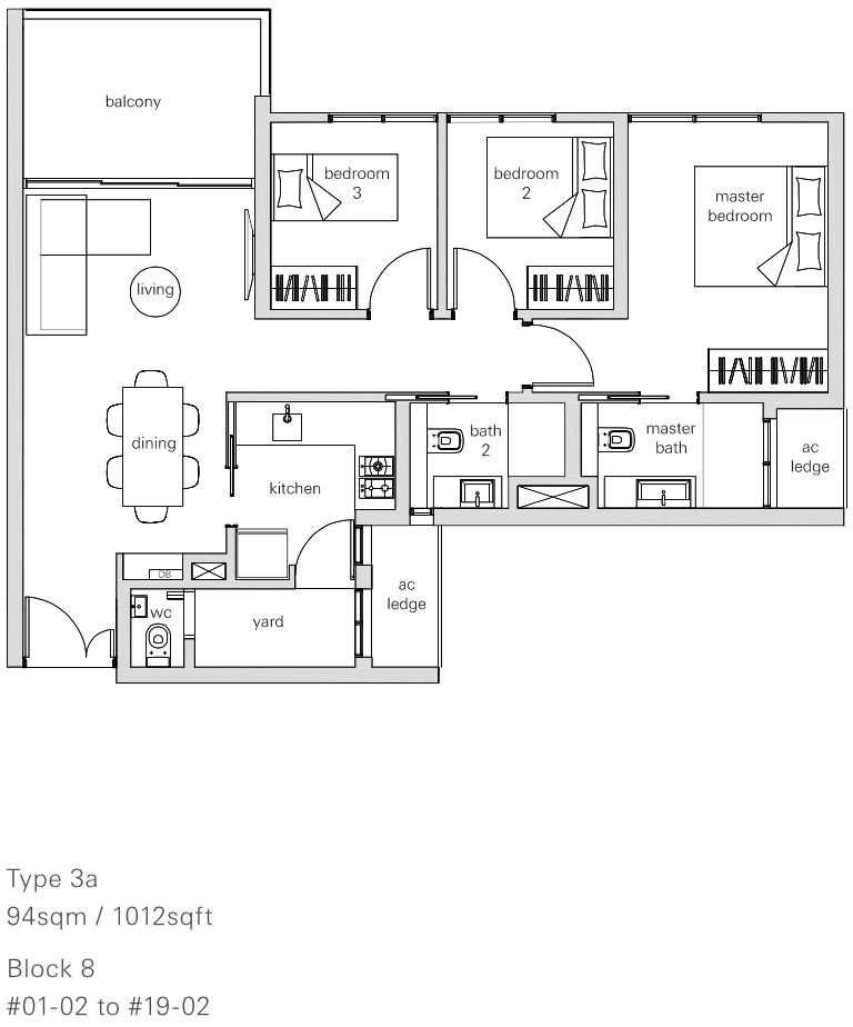
3 Bedroom (3a, 3b, 3c, 3d, 3e, 3f, 3g) | 990 – 1066 | 187 |
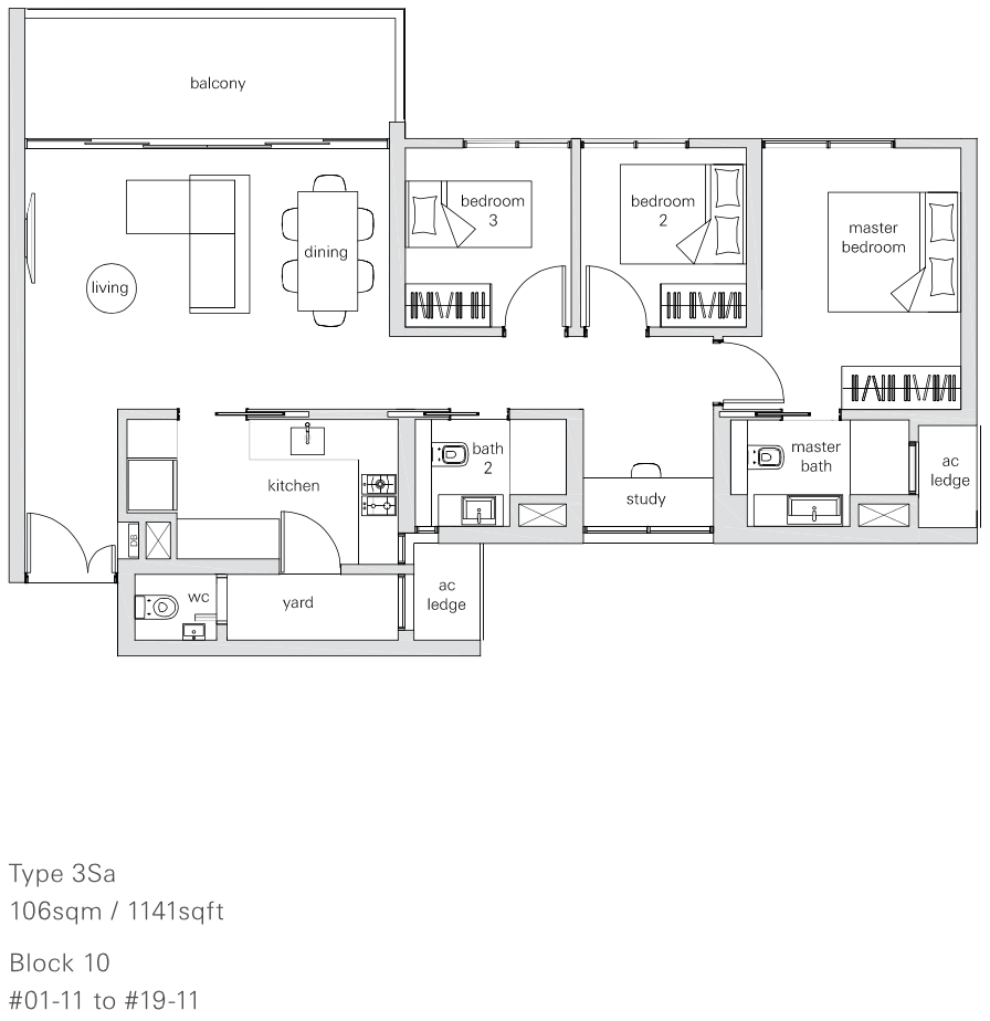
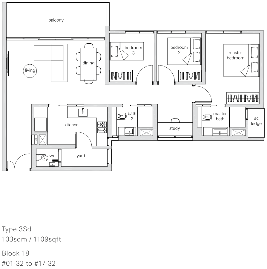
3 Bedroom + Study (3Sa, 3Sb, 3Sc, 3Sd, 3Se, 3Sf) | 1109 – 1163 | 127 |
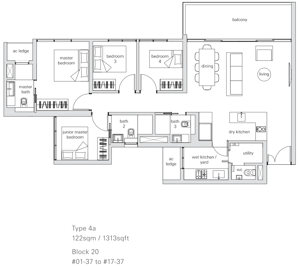
4 Bedroom (4a, 4b, 4c) | 1313 – 1335 | 68 |
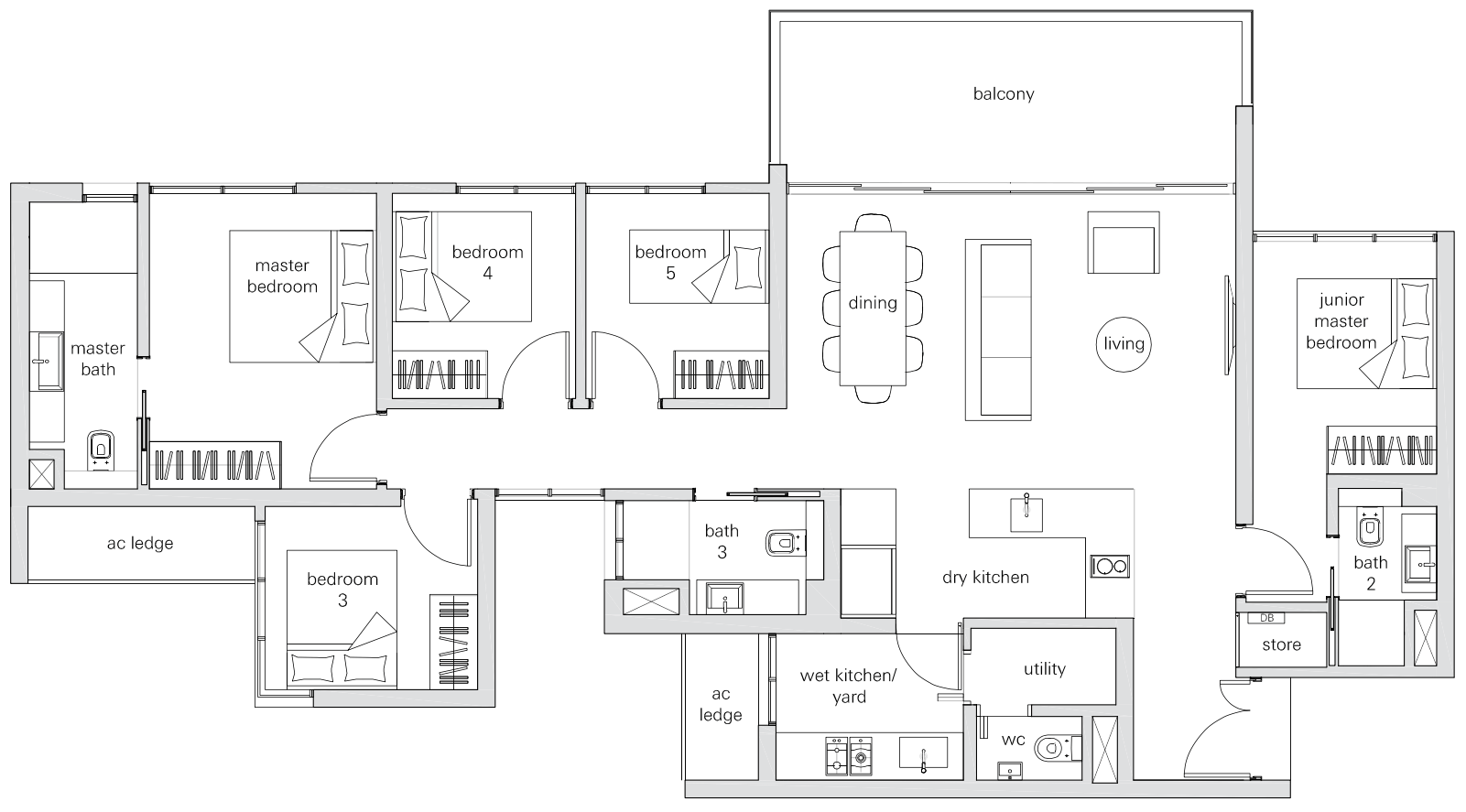
5 Bedroom (5a) | 1561 | 19 |
Penthouse (4BR) (PHb, PHe, PHf) | 1841 – 1916 | 3 |
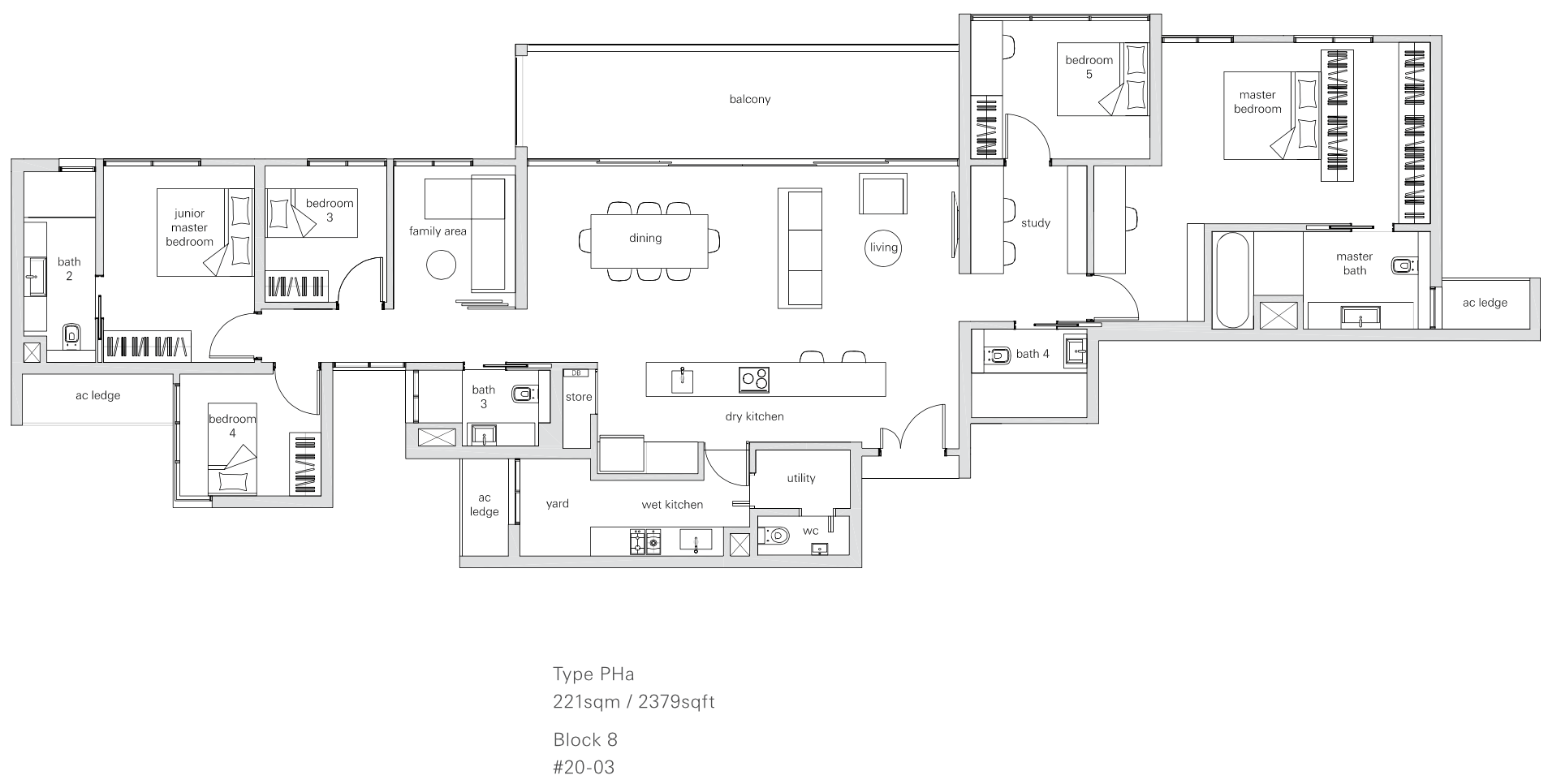
Penthouse (5BR) (PHa, PHc, PHd) | 2239 – 2411 | 3 |
Total | 698 |
Mayflower Station
- Walking Distance to the station.
- 4 stations to Woodlands interchange
- To be completed by 2021
- The Cross-Island Line, which will pass through Ang Mo Kio when it starts operations by 2030
Upcoming Thomson Line (fully underground)
- The 30-km long Thomson Line will enhance rail connectivity in the north-south corridors to the Central Business District (CBD) and developments in the Marina Bay area.
- It comprises 22 stations and 6 interchange stations, which will connect to the Downtown Line, North-South-East-West Line, Circle Line and North-East Line.
- It will significantly improve travel time and providing greater accessibility for commuters.
Major Expressways
- CTE
- PIE
- SLE
- The future North South Expressway (NSE) to be completed by 2020 will significantly reduce journey times from the North East to the CBD
- Ang Mo Kio Hub
- Junction 8
- Djitsun Mall
- Nex
- Greenwich V
- Seletar Mall
- Heartland Mall
- Compass Point
- CHIJ St Nicholas Girls’ School
- James Cook University
- Mayflower Secondary School
- Ang Mo Kio Primary School
- Ang Mo Kio Secondary School
- Yio Chu Kang Secondary School
- Anderson Junior College
- Nanyang Polytechnic
- Presbyterian High School
- Anderson Primary School
- Seletar Aerospace Park
- Northstar @ AMK
- Ang Mo Kio Industrial Park 2 & 2A
- Paya Lebar Commercial Hub
- Seletar Country Club
- Singapore Island Country Club
- Marina Country Club
- Orchid Country Club
- Sengkang Riverside Park
- Bishan-Ang Mo Kio Park
- Lower Pierce Reservoir Park
- Upper Pierce Reservoir Park
Unit Types | SQFT | No. of Units | Sold | Available | Avg PSF | Lo Price | Hi Price |
---|---|---|---|---|---|---|---|
1 Bedroom | 431 – 474 | 95 | 95 | 0 | – | – | – |
2 Bedroom | 678 – 700 | 82 | 82 | 0 | – | – | – |
2 Bedroom + Study | 775 – 797 | 114 | 114 | 0 | – | – | – |
3 Bedroom | 990 – 1066 | 187 | 186 | 1 | $1219 | $1.234m | $1.234m |
3 Bedroom + Study | 1109 – 1163 | 127 | 127 | 0 | – | – | – |
4 Bedroom | 1313 – 1335 | 68 | 68 | 0 | – | – | – |
5 Bedroom | 1561 | 19 | 14 | 5 | $1578 | $2.426m | $2.495m |
Penthouse (4BR) | 1841 – 1916 | 3 | 3 | 0 | – | – | – |
Penthouse (5BR) | 2239 – 2411 | 3 | 3 | 0 | – | – | – |
Total | 698 | 692 | 6 | – |
We will try our very best to update regularly on the latest privileged information like the developer sale volume with price range, balance units available and promotions (if there is any).
Updated as of 10 Mar 2017.
Exquisite Sense of Space
From 1 to 5-bedroom apartments to penthouses, every space has been thoughtfully designed with the most exacting selection of fittings and architectural touches.









The Panorama is giving you a wide selection of branded appliances and fittings to enjoy.
You can now pamper yourself with a nice hot bath or cook up a delectable meal in your fully equipped kitchen, all thanks to the our branded partners.
Now, with the total comfort for your home, you wouldn’t want to leave home anymore.
Showflat Location: Ang Mo Kio Ave. 8, opposite Granduer 8 Condominium
Call Joanne Ng at +65 9151 1871 for Showflat Viewing Arrangement Today!

3 Bedroom 3c 94 sqm 1012 sqft

5 Bedroom 5a 145 sqm 1561 sqft
Call Joanne Ng at
+65 9151 1871
for Showflat Viewing Arrangement Today!
No Matter Of Which Residential Property You Are Interested In …
We will always put your benefits in the top priority.