| Skypark Residences | Location | Site Plan |
| Showflat | Floor Plan | Price |
| Developer | +65 9151 1871 |
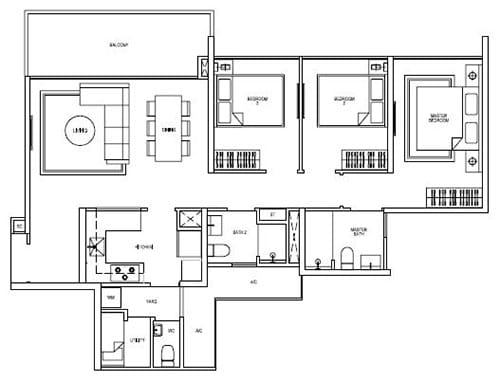
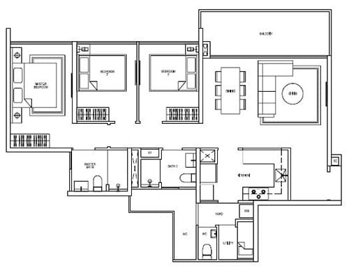
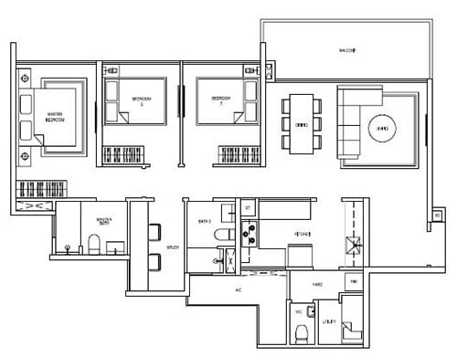
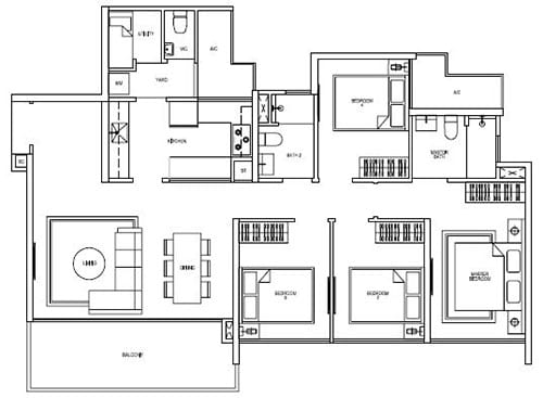
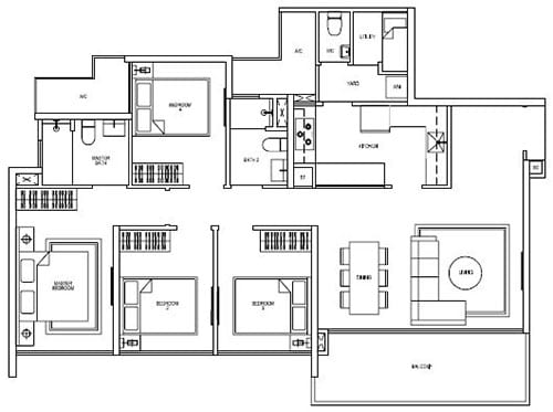
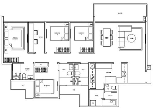
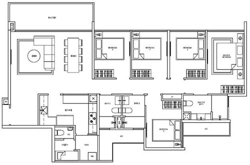
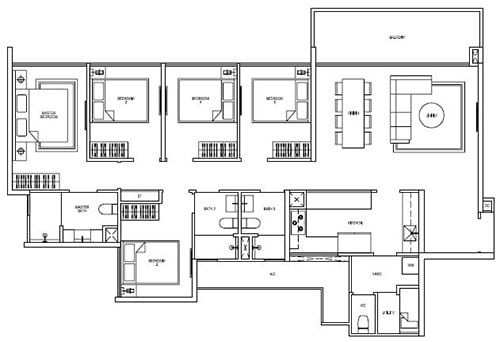
Skypark Residences Floor Plan – Ergonomic And Innovative Unit Layouts
Skypark Residences Floor Plan – it consists of 3, 3 + Study, 4, 4 + Study, 5 and 5 bedroom Maisonette unit types. Whether you are a young couple buying your cozy new dream home, or whether you are planning to stay with your extended family, Skypark Residences EC’s ideal layouts and floor plans will suit you.
You may refer to the Skypark Residences Site Plan below to see where the particular unit type is located.

SkyPark Residences Site Plan
3 Bedroom

A1 106 sqm, 1141 sqft

A2 107 sqm, 1152 sqft
3 Bedroom + Study

B1 115 sqm, 1238 sqft
4 Bedroom

C1 121 sqm, 1302 sqft

C2 122 sqm, 1313 sqft
4 Bedroom+ Study

D1 142 sqm, 1528 sqft
5 Bedroom

E1 148 sqm, 1593 sqft

E2 148 sqm, 1593 sqft
A floor plan is a drawing to scale, showing a view from above, of the relationships between rooms, spaces and other physical features at one level of a structure. Nothing beats a floor plan in giving you a clear view on a property you are going to own it.
Call Joanne Ng at
+65 9151 1871
for Showflat Viewing Arrangement Today!
No Matter Of Which Residential Property You Are Interested In …
We will always put your benefits in the top priority.
