Bellewoods EC
A Home That Is Centred Around The Lifestyle You & Your Loved Ones Desire
Bellewoods EC is a 99-years leasehold Executive Condo, located at Woodlands Ave 5/6, District 25.
It is developed by renowned developer Qingjian Realty (Woodlands) Pte Ltd.
The land size is around 226,091 sqft. With expected date of Vacant Possession on 30 November 2017, it comprises of 12 blocks with 561 residential units (2 Bedroom, 3 Bedroom, 3 Bedroom Cospace, 3 Bedroom Premium, 4 Bedroom, 4 Bedroom Cospace, 4 Bedroom Premium and 5 Bedroom Cospace), and stands 11th/12th storeys tall.
At Bellewoods, we create your perfect home …

| Developer | Qingjian Realty (Woodlands) Pte Ltd |
| Project Name | Bellewoods EC |
| Tenure | 99 years commencing from 12 Aug 2013 |
| Location | Woodlands Ave 5/6 |
| District | 25 |
| Site Area | 226,091 sqft |
| # of Blocks | 12 |
| # of Floors | 12 Blocks of 11/12 storeys |
| # of Units | 561 |
| # of Car Park Lots | 561 + 5 Handicap lots (basement carpark) |
| Expected Vacant Possession | 30 November 2017 |

| Unit Types | SQFT | No. of Units |
|---|---|---|
| 2 Bedroom | 786 – 1066 | 36 |
| 3 Bedroom | 936 – 1216 | 90 |
| 3 Bedroom Cospace | 1249 – 1582 | 72 |
| 3 Bedroom Premium | 1066 – 1345 | 129 |
| 4 Bedroom | 1152 – 1442 | 60 |
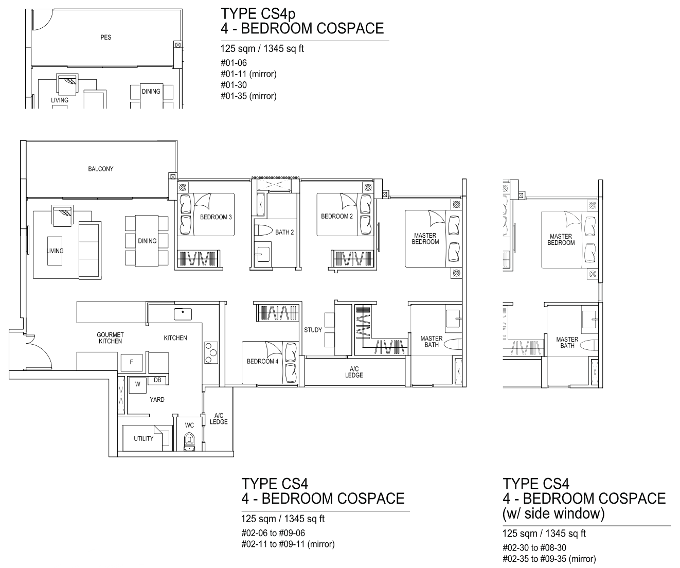
| 4 Bedroom Cospace | 1345 – 1679 | 47 |
| 4 Bedroom Premium | 1227 – 1561 | 93 |
| 5 Bedroom Cospace | 1528 – 1679 | 34 |
| Total | 561 |
| MRT & LRT | Bus Stops | Childcare Centers | Primary Schools | Secondary Schools | Shopping Malls | Groceries & Supermarts |
|---|---|---|---|---|---|---|
| Admiralty MRT (930m) | Opp Blk 620 (220m) | 620 Woodlands Drive 52 #01-84 | Woodlands Ring Primary (460m) | Woodlands Ring Secondary (430m) | Causeway Point (1.68km) | Giant (Vista Point) (760m) |
| Woodlands South MRT (U/C: 2019, 990m) | Blk 620 (220m) | 628A Woodlands Ring Road #01-282 | Greenwood Primary (980m) | Spectra Secondary (630m) | NTUC Fairprice (Woodlands Blk 888) (800m) | |
| Woodlands MRT (1.67km) | 11 Woodlands Close #01-40 | Woodlands Primary (1.11km) | Woodgrove Secondary (630m) | Giant (Admiralty) (920m) | ||
| 11 Woodlands Close #01-29/30 | Singapore Sports School (1.41km) |
Future residents of Bellewoods, you may want to find out the new developments in Woodlands, Sembawang and Canberra. Discover how the new developments will enhance your return in this EC investment.
Come Home To Wooded Serenity
Bellewoods is offering you an oasis of nature. It comes with six zones of indulgence, which are inspired by the different types of forests and the beauty of nature. You and your loved ones can enjoy luxurious choices for leisure and recreation.







Space Made Smarter
At Bellewoods, it comes with an innovative concept of CoSpace.
There are three major components:
- CoSpace Efficiency – allows you to maximise your space that best suit your family needs.
- Cospace Flexibility -allows you to create spaces that best suit your own lifestyle at different stage of your life.
- CoSpace Interactivity – allows you to enjoy spaces and at the same time interact with one another freely.
Use your imagination, you may feel free to alter the space and use it to your full advantage. Now, you can create the space of your dreams that you and your family need the most.





