| One Canberra | Location | Site Plan |
| Showflat | Floor Plan | Price |
| Developer | +65 9151 1871 |
One Canberra EC Floor Plan
One Canberra EC Floor Plan – it consists of 3, 4, 5 bedroom, dual key and penthouse unit types, whether you are a young couple buying your cozy new dream home, or whether you are planning to stay with your extended family, One Canberra EC’s ideal layouts and floor plans will suit you.
You may refer to the One Canberra EC Site Plan below to see where the particular unit type is located.

One Canberra EC Site Plan with Unit Mix
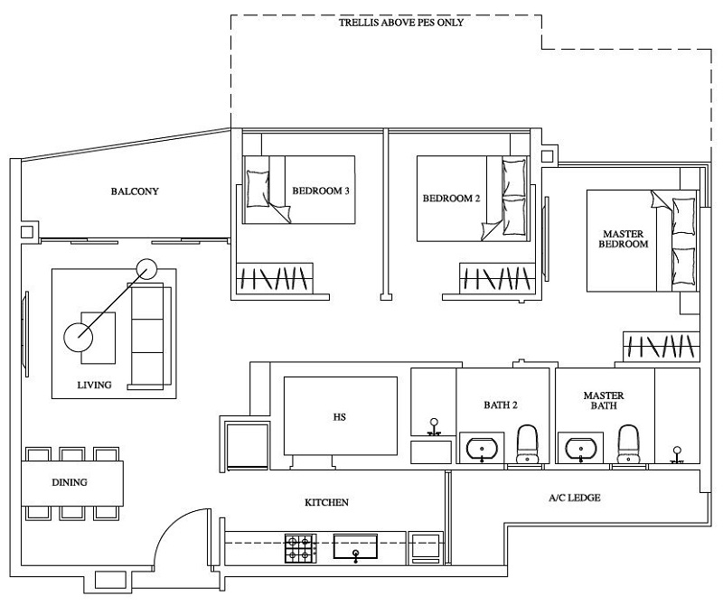
One Canberra EC Floor Plan – 3 Bedroom Compact

3 Bedroom, C1, 947 sqft, Stack 03, 04, 07, 08, 12, 15, 42, 50

3 Bedroom, C2, 969 sqft, Stack 02

3 Bedroom, C3, 936 sqft, Stack 20

3 Bedroom, C4, 958 sqft, Stack 01, 45, 46
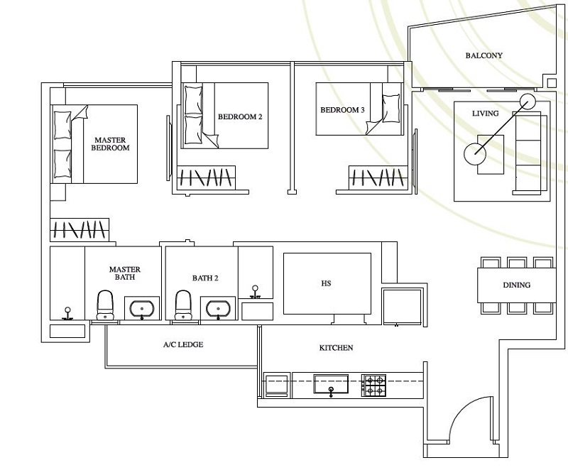
One Canberra EC Floor Plan – 3 Bedroom Standard

3 Bedroom, C5, 1055 sqft, Stack 29, 43, 51

3 Bedroom, C6, 1055 sqft, Stack 23, 27, 36, 40, 41, 49

3 Bedroom, C7, 1066 sqft, Stack 05, 11, 16, 22, 26, 48

3 Bedroom, C8, 1023 sqft, Stack 17, 18, 19

3 Bedroom, C9, 1044 sqft, Stack 06, 09, 13, 14, 24, 28, 31, 32, 47
One Canberra EC Floor Plan – 3 Bedroom Dual-key

3 Bedroom Dual-key, C10-DK, 1249 sqft, Stack 44, 52

3 Bedroom Dual-key, C11-DK, 1259 sqft, Stack 10, 21, 25
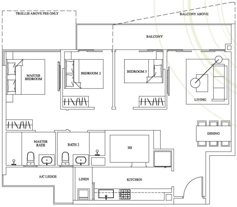
One Canberra EC Floor Plan – 4 Bedroom Standard

3D Floor Plan, 4 Bedroom

4 Bedroom, D1, 1249 sqft, Stack 33, 37

4 Bedroom, D2, 1270 sqft, Stack 35, 39
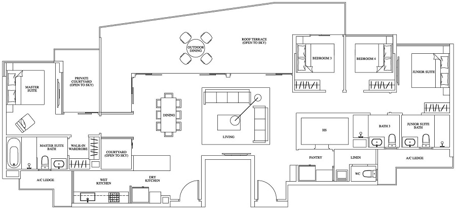
One Canberra EC Floor Plan – 4 Bedroom Dual-key

3D Floor Plan, 4 Bedroom Dual-key

4 Bedroom Dual-key, D3-DK, 1442 sqft, Stack 30, 34, 38
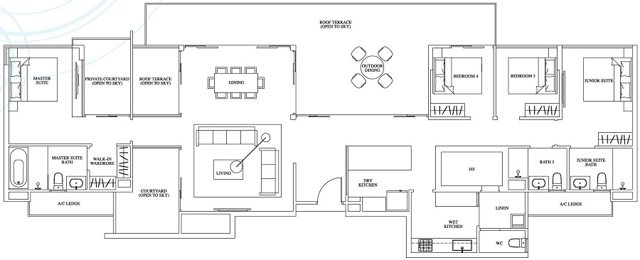
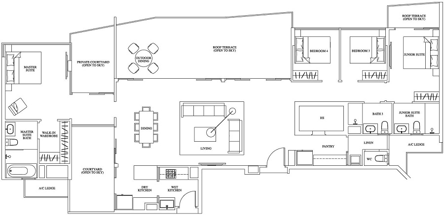
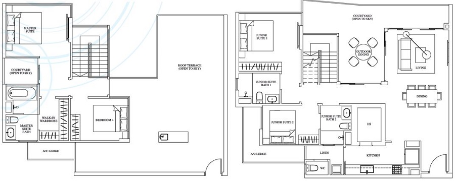
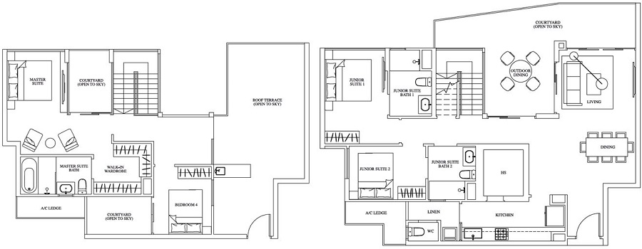
One Canberra EC Floor Plan – Penthouse

3D Floor Plan, Penthouse

Penthouse, PH1, 2293 sqft, #12-18

Penthouse, PH2, 2347 sqft, #12-22

Penthouse, PH3, 1098+1152 sqft, #13-07, #13-08, #13-15

Penthouse, PH4, 1141+1119 sqft, #13-02, 05, 11, 16, 26, 48

Penthouse, PH5, 1184+1163 sqft, #13-01, 06, 09, 13, 28, 47

Penthouse, PH6, 1206+1162 sqft, #13-29, 43, 51

Penthouse, PH7, 1087+1141 sqft, #13-27, 36, 41, 49

Penthouse, PH10, 1076+1302 sqft, #13-33, 37

Penthouse, PH11, 1055+1292 sqft, #13-35, 39

Penthouse, PH13, 2120 sqft, #12-23
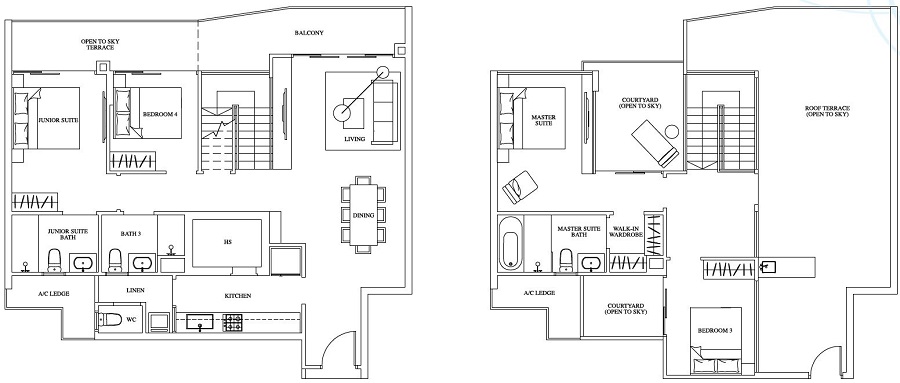
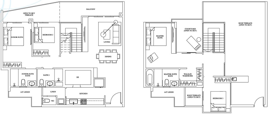
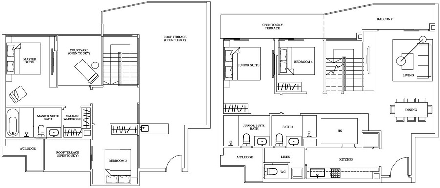
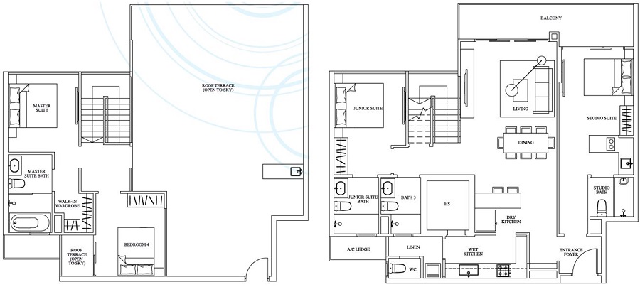
One Canberra EC Floor Plan – Penthouse Dual-key

3D Floor Plan, Penthouse Dual-key

Penthouse Dual-key, PH8-DK, 1173+1249 sqft, #13-44, 52

Penthouse Dual-key, PH9-DK, 1270+1270 sqft, #13-10, 25

Penthouse Dual-key, PH12-DK, 1292+1421 sqft, #13-30, 34, 38
A floor plan is a drawing to scale, showing a view from above, of the relationships between rooms, spaces and other physical features at one level of a structure. Nothing beats a floor plan in giving you a clear view on a property you are going to own it.
Call Joanne Ng at
+65 9151 1871
for Showflat Viewing Arrangement Today!
No Matter Of Which Residential Property You Are Interested In …
We will always put your benefits in the top priority.